phone 02331 5930426
phone


menu

Iserlohn

Traumhafte 4-Zimmer ETW mit direktem Zugang zum Garten in Bestlage!

Zimmer 4
Wohnfläche ca. 85 m2
Kaufpreis 159.000,00 EUR
Scout-ID 149532301
Wohnungstyp Erdgeschosswohnung
Etage 1 von 2
Schlafzimmer 3
Badezimmer 1
Keller Ja
Garten Ja
Objektzustand Gepflegt
Baujahr 1971
Qualität der Ausstattung Gehoben
Energieausweistyp Verbrauchsausweis
Heizungsart Zentralheizung
Wesentliche Energieträger Öl
Energieverbrauchskennwert 122 kWh/(m2 * a)
Bezugsfrei ab sofort
Provision für Käufer 3,57 % inkl. 19% MwSt.
Weitere Dokumente Grundriss, Energieausweis

Objekt­beschreibung

Die traumhafte 4-Zimmer-Eigentumswohnung befindet sich in der begehrten Wohngegend Iserlohn-Kalthof. Diese Wohnung bietet den perfekten Mix aus Komfort, Stil und Lage.

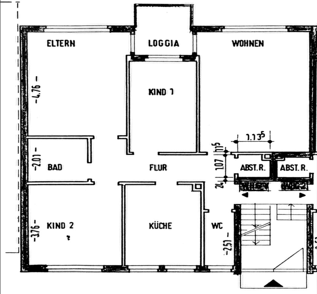
Die 85 qm Wohnfläche teilen sich in ein großes, helles Wohnzimmer, ein Schlafzimmer, zwei Kinderzimmer, eine große Küche, ein Badezimmer sowie ein Gäste-WC auf. Die Wohnung ist hervorragend geschnitten und alle Zimmer sind separat vom Flur zugänglich.

Diese exklusive Eigentumswohnung wurde erst dieses Jahr modern und stilvoll renoviert. Das Badezimmer besticht durch helle und großformatige Fliesen sowie die bodentiefe Dusche.

Ein besonderes Highlight bildet die kleine Terrasse mit Südausrichtung, die nicht nur Sonnenliebhaber anspricht, sondern auch einen direkten Zugang zum Gemeinschaftsgarten bietet.

Alle Fenster sind doppelverglast und mit Rollläden ausgestattet. Zur Wohnung gehört außerdem ein Kellerraum, der ausreichend Stauraum bietet sowie eine Stellplatz direkt vor der Tür. Des Weiteren besteht z.Zt. ein Garagenmietverhältnis, das eventuell übernommen werden kann.

Die Wohnung ist sowohl für Familien als auch für Paare ideal, die ein modernes und gemütliches Zuhause suchen.

Also, worauf warten Sie noch? Kontaktieren Sie uns und vereinbaren Sie einen Besichtigungstermin.


phone



Ausstattung

  • 4 Zimmer
  • komplett renoviert
  • großzügige Raumaufteilung
  • Badezimmer mit modernen, großformatigen Fliesen und bodentiefer Dusche
  • neues, modernes Gäste-WC
  • doppelverglaste Fenster mit Rolläden
  • Süd-Terrasse mit direktem Zugang zum Gemeinschaftsgarten
  • Keller
  • Stellplatz
  • optional: Anmietung einer Garage

Lage

Iserlohn ist eine große kreisangehörige Stadt sowie Mittelstadt im Märkischen Kreis in Nordrhein-Westfalen und mit rund 93.000 Einwohnern die größte Stadt des Märkischen Kreises und des Sauerlandes.

Die Lage bietet eine ideale Mischung aus ruhigem Wohnumfeld und guter Anbindung. Die Nachbarschaft ist geprägt von Entspannung und Natur, während eine gute Verkehrsanbindung und die Nähe zu Einrichtungen des täglichen Bedarfs den Wohnkomfort abrunden.

Sonstiges

Sehr gerne besprechen wir die Details mit Ihnen und beantworten weitere Fragen. Bitte haben Sie jedoch Verständnis, dass wir nur Anfragen mit Angaben Ihres vollständigen Namens, Ihrer Anschrift und Telefonnummer bearbeiten können.

Die Objektbeschreibung und Informationen sind ohne Gewähr und basieren ausschließlich auf den Angaben des Eigentümers.

Tatjana Ilic Immobilienmaklerin

No. 1 Immobilien GmbH
Hochstraße 74
58095 Hagen
phone 02331 5930426
email

Galerie

arrow_upward
Wir benutzen systembedingte Session-Cookies, um die Funktion dieser Seite zu gewährleisten und die Benutzung zu vereinfachen. Desweiteren werden von Google Analytics Cookies gesetzt, die uns helfen die Inhalte der Seiten zu optimieren.
   Alles akzeptieren   
Nur technisch notwendige Cookies
Weitere Informationen